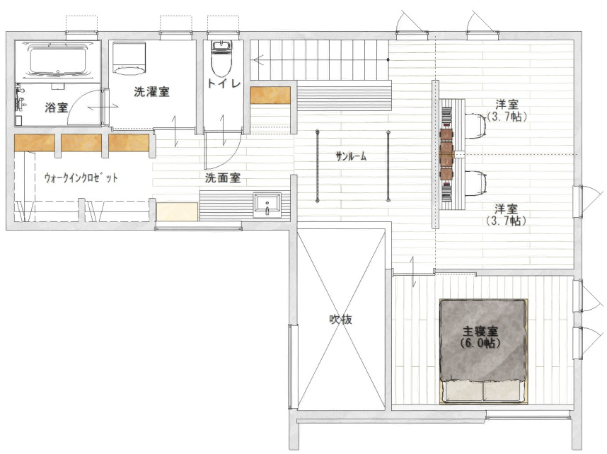
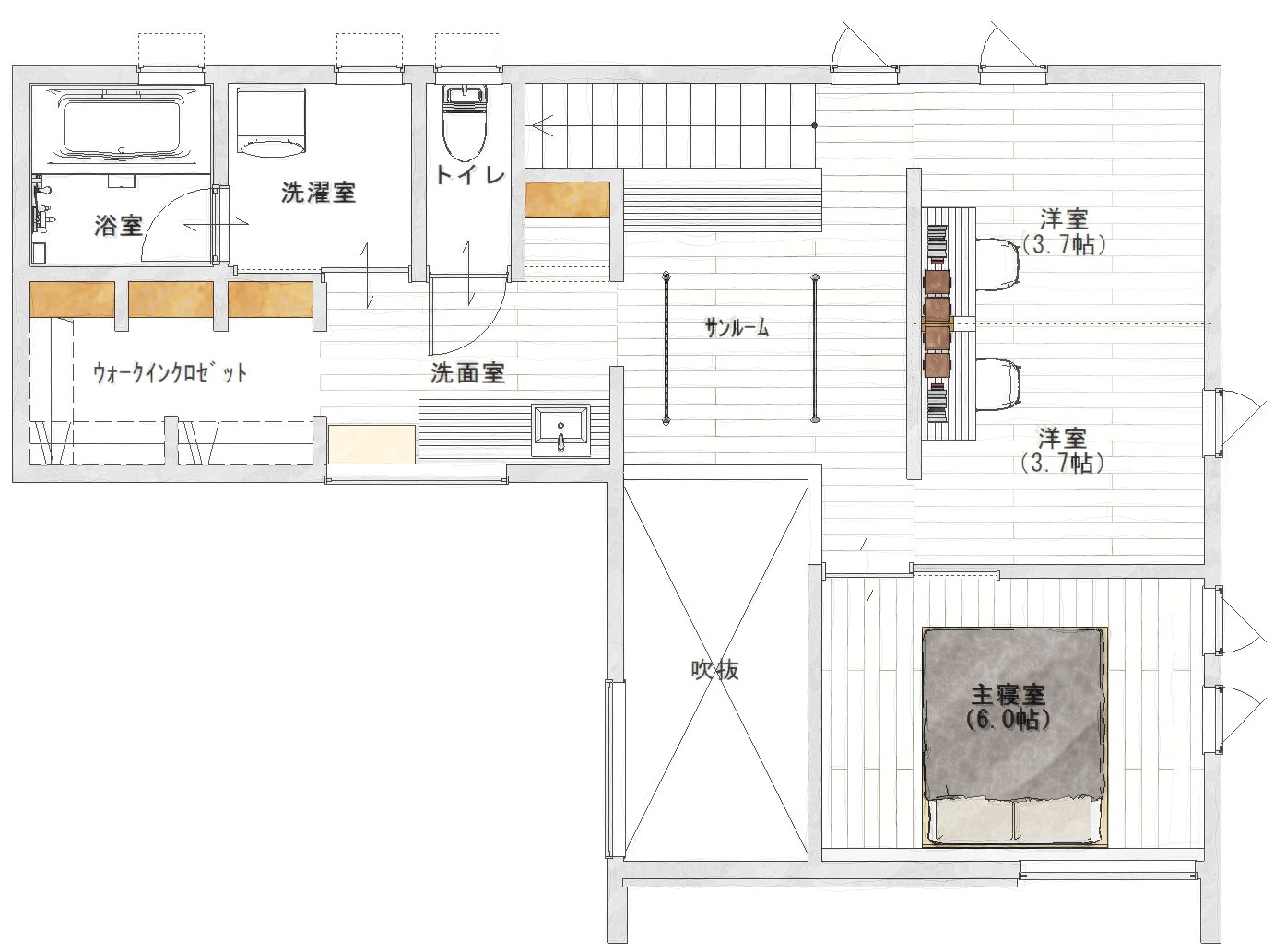
- 新潟市中央区網川原
【限定1棟!先行販売説明会】中央区網川原モデルハウス ※令和8年5月16日OPEN!
411Sat - 531Sun
今すぐお申し込み!
411Sat - 531Sun
今すぐお申し込み!
contact
ご来場プレゼント

〇来場日前日までに事前アンケートをお答えいただいた方
(見学会に参加ご予約いただいた方へ、別途「事前アンケート」をお送りいたします。)
〇弊社施工エリア内で家づくりを前向きにご検討の方
〇1組様1回限り・初回来場の方に限ります
〇ご同居予定の方と一緒にご来場ください。
(お一人でお越しになると対象になりません。)
〇ご来場後のヒアリングにご対応ください。
〇他のプレゼントキャンペーンとの併用はできません
〇お渡しは後日郵送とさせていただきます
お住まいの地域(店舗)を
お選びください。